TOUCH
AREA
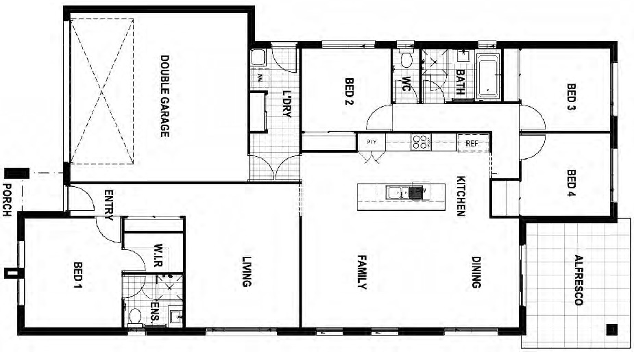
House: 206.54 m2
Land: 595 m2
PRICE
$816,814 Turnkey
$406,814 House + $410,000 Land
RENTAL
NA Est. Yield
NA Rental Per Week
Est. Registration
Dec 22

Lot 529 - Heddon Greta
Property Brochure
Download our full property brochure, view plans and elevations and key inclusions.
Premium Build
Inclusions
- Full Turnkey Finish
- Fully fenced, turfed & Landscaped
- Colorbond roof
- 2550 high ceilings
- Roller blinds throughout
- 20mm manufactured stone kitchen benchtop
- Approx 1.8kw solar power system
- Stainless steel kitchen appliances
- Ceiling fans
- Undercover tiled alfresco areas


