TOUCH
AREA
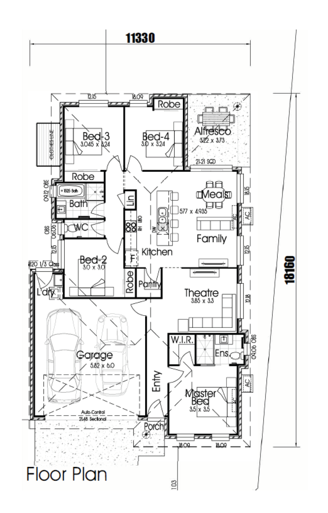
House 176 m2
Land 412 m2
PRICE
$766,888 - $786,888 Turnkey
$348,000 - 368,000 House + $418,888 Land
Est. Registration
Late 2022

Lot 512 - Cooranbong
Property Brochure
Download our full property brochure, view plans and elevations and key inclusions.


