TOUCH
AREA
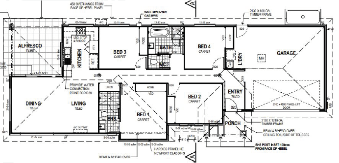
House 178 m2
Land 450 m2
PRICE
$841,526 Turnkey
$426,526 House + $415,000 Land
RENTAL
3.58% - 3.83% Est. Yield
$580 - $620 Per Week
Est. Registration
Oct 2022

Lot 5 - Morisset
Property Brochure
Download our full property brochure, view plans and elevations and key inclusions.
Premium Build
Inclusions
- Full Turnkey Finish
- Fully fenced, turfed & Landscaped
- Colorbond roof
- 2550 high ceilings
- Roller blinds throughout
- 20mm manufactured stone kitchen benchtop
- Approx 1.8kw solar power system
- Stainless steel kitchen appliances
- Ceiling fans
- Undercover tiled alfresco areas


