TOUCH
AREA
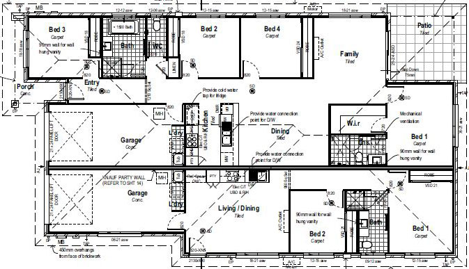
House 247 m2
Land 612 m2
PRICE
$1,036,052 Turnkey
$536,052 House + $500,000 Land
RENTAL
4.27% - 4.57% Est. Yield
$850 - $910 Rental Per Week
Est. Registration
Registered

Lot 312 Denton Park - ABERGLASSLYN
Property Brochure
Download our full property brochure, view plans and elevations and key inclusions.
Premium Build
Inclusions
- Full Turnkey Finish
- Fully fenced, turfed & Landscaped
- Colorbond roof
- 2550 high ceilings
- Roller blinds throughout
- 20mm manufactured stone kitchen benchtop
- Approx 1.8kw solar power system
- Stainless steel kitchen appliances
- Ceiling fans
- Undercover tiled alfresco areas


