TOUCH
AREA
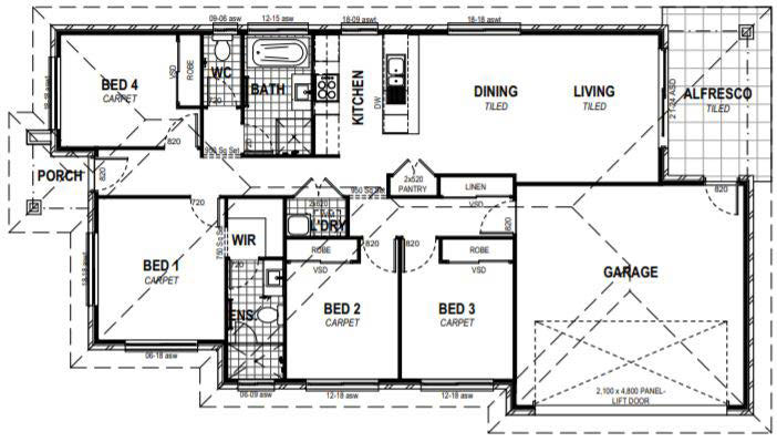
House 160 m2
Land 300 m2
PRICE
$1,123,545 Turnkey
$424,545 House + $699,000 Land
RENTAL
NA Est. Yield
NA Rental Per Week
Est. Registration
June 2023

Lot 161 Fourteenth Avenue
Property Brochure
Download our full property brochure, view plans and elevations and key inclusions.
Premium Build
Inclusions
- Full Turnkey Finish
- Fully fenced, turfed & Landscaped
- Colorbond roof
- 2550 high ceilings
- Roller blinds throughout
- 20mm manufactured stone kitchen benchtop
- Approx 1.8kw solar power system
- Stainless steel kitchen appliances
- Ceiling fans
- Undercover tiled alfresco areas


