TOUCH
AREA
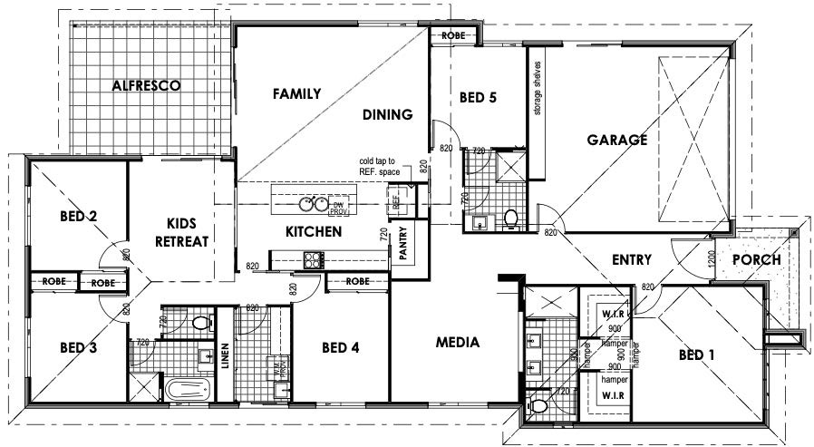
House 247.85 m2
Land 663.9 m2
PRICE
$932,714 Turnkey
$502,714 House + $430,000 Land
RENTAL
NA Est. Yield
NA Per Week
Est. Registration
Dec 2022

Lot 116 - Gillieston Heights
Property Brochure
Download our full property brochure, view plans and elevations and key inclusions.
Premium Build
Inclusions
- Full Turnkey Finish
- Fully fenced, turfed & Landscaped
- Colorbond roof
- 2550 high ceilings
- Roller blinds throughout
- 20mm manufactured stone kitchen benchtop
- Approx 1.8kw solar power system
- Stainless steel kitchen appliances
- Ceiling fans
- Undercover tiled alfresco areas


